
提升高度:20m
材质:不锈钢,碳钢
类型:链条式,链板式
处理量:50t
适用物料:能够不间断的垂直提升物料,可以提升粮食、塑料粒子、石英砂等物料
连续式垂直提升机又叫转斗式提升机,能水平——垂直——水平组合输送。可以单点或多点加料,通过卸料装置完成单点或多点卸料可以输送各种粉状物料和颗粒状物料,比较适合输送非黏性物料。具备占地面积小、提升高度大、密封性能好、物料无破损的特点。大汉连续式垂直提升机料斗材质有改性塑料料斗、碳钢料斗、不锈钢料斗可选。

连续式垂直提升机适用于垂直提升输送粉状、粒状、及小块状的磨吸性较小的散状物料,如粮食、煤、水泥、碎矿石等,广泛适用于食品、化妆品、化工医药业、五金电料业、冶金制造业、矿业等行业。

1、工作驱动功率小,采用进料、电感卸载、大容量料斗,无返料、挖料的现象;
2、应用物料范围广,不仅可以提升粉末、小颗粒材料,何况输送磨琢性大的材料;
3、提升高度高,无故障时间超过2万小时。升降机操作稳定,提升高度可达100米;
4、使用寿命长,进料方式为流入的形式,不需要使用铲斗,物料很少受到挤压和碰,减少设备磨损。

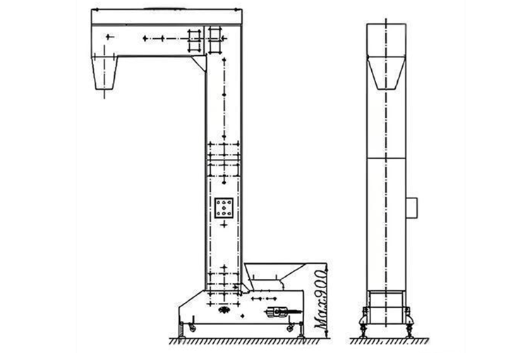
连续式垂直提升机主要由壳体、牵引件(输送链)、料斗、驱动轮(头轮)、改向轮(尾轮)、张紧装置、导向装置、加料口、卸料口等组成,当设备启动后,料斗把物料从下面的储藏中舀起,随着输送带或链提升到顶部,绕过顶轮后向下翻转,转斗式提升机将物料倾入接受槽内。

带传动的转斗式提升机的传动带一般采用橡胶带,装在下或上面的传动滚筒和上下面的改向滚筒上。链传动的转斗式提升机一般装有两条平行的传动链,上或下面有一对传动链轮,下或上面是一对改向链轮。转斗式提升机一般都装有机壳,以防止转斗式提升机中粉尘飞扬。
